Flexicubes®
Kontor- og mødelokaler
Mangler du kontor- og mødelokaler? Med Flexicubes® kan du hurtigt og nemt få en ny kontorbygning med et lyst og behageligt arbejdsmiljø. Vi tilpasser lokalerne til netop dine behov og med det antal moduler, du har behov for. Og finansieringen? Den er fleksibel - du kan både købe og leje Flexicubes®.
Reference
Bridgestone
Bridgestone er ved at få udbygget deres eksisterende hovedkontor, hvorfor de har lejet et møbleret kontor af Flex Modul. Her har vi leveret 180 m² kontorfaciliteter, som giver Bridgestone lyse og behagelige kontorfaciliteter i udbygningsfasen.
Entreprise: Udlejning i Hovedentreprise
Bygherre: Bridgestone
Bruttoareal: 180 m²
År: 2019
Reference
Per Aarsleff A/S
Per Aarsleff A/S ønskede en kontorbygning, som var fleksibel og flytbar, hvilket vi kunne levere med vores Flexicubes® modulbyggeri. De fik en 3-etagers kontorbygning, hvor der både var kontorer, mødelokaler, kopirum og toiletter. Hvis Per Aarsleff A/S' behov skifter, kan hele eller dele af bygningen flyttes til nye lokationer, og samtidig kan bygningen ændres fra at være 3 etager til at være 2 og 1 plan.
I bygningen er der indbygget microventilation. Det fungerer således at luften i bygningen bliver udskiftet gennem ydervæggen. Sådan ventilation betyder at Per Aarsleff A/S kan spare 85% af den energimængde et traditionelt ventilationsanlæg bruger - og samtidig sikrer de at der er et godt indeklima i kontorbygningen.
Entreprise: Hovedentreprise
Bygherre: Per Aarsleff A/S
Bruttoareal: 390 m² + 390 m² + 390 m² + 660 m²
År: 2014 + 2015 + 2016 + 2017
Reference
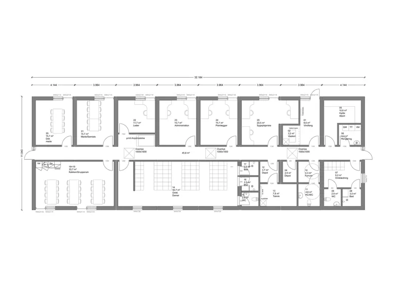
Østermarie
Hjemmeplejen Østermaries kontorbygning var vores første modulbyggeri i Bornholms Regionskommune. Bygningen er lavet af 8 af vores store Flexicubes® på 44 m².
Bygningen indeholder to mødelokaler, et køkken og grupperum, flere kontorer, administrationen, samt omklædning med tilhørende toilet og bad til hjemmeplejens ansatte.
Entreprise: Totalentreprise
Bygherre: Bornholms Regionskommune
Bruttoareal: 352 m²
År: 2021
Reference
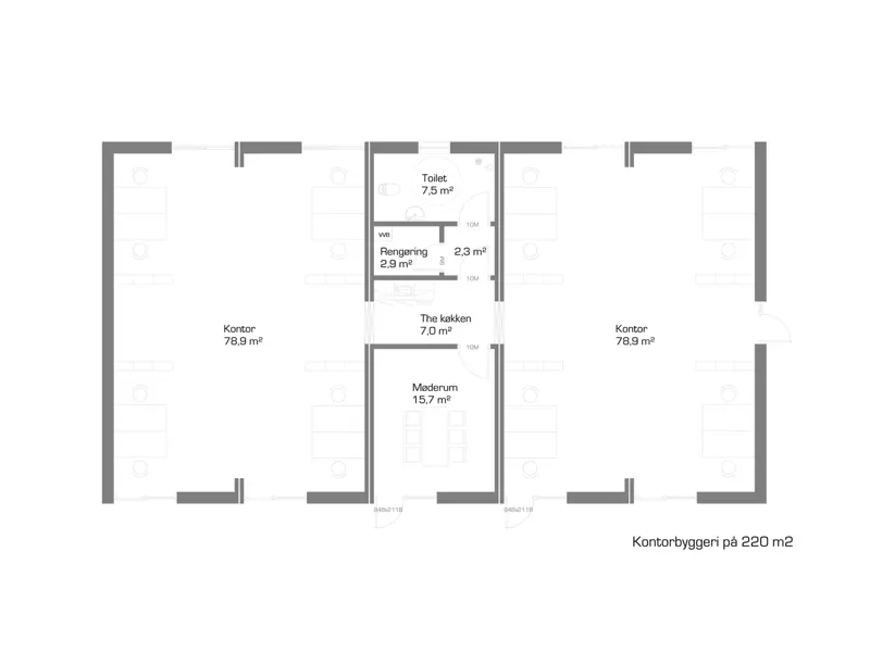
Sports Group
Sports Group ønskede en separat kontorbygning med en facade, der passer til deres eksisterende bygning. Derfor har vi leveret 5 af vores store Flexicubes® på 44 m². Modulerne er indrettet med 2 kontorer, som deles af en mellemgang, og derudover indeholder bygningen toilet, et thekøkken og et mødelokale.
Entreprise: Udlejning i Hovedentreprise
Bygherre: Sports Group
Bruttoareal: 220 m²
År: 2021
Forskellige grundplanløsninger
Flexicubes®-konceptet kan sammensættes præcist efter dine behov, hvilket gør det til et fleksibelt system. Du kan altså udbygge eller indskrænke dit byggeri efter behov, samtidig med det kan flyttes i takt med virksomhedens vækst.
Herunder finder du inspiration til forskellige grundplansløsninger, man kan lave med vores Flexicubes®.
KONTAKT OS
Mangler I ekstra plads?
Vil I høre om mulighederne i vores Flexicubes® eller have et tilbud på leje eller køb, så kontakt os gerne her eller
ring 9744 2333