Flexicubes®
Institutioner
Har du brug for en ny eller midlertidig dagsinstitution? Flexicubes® er ideel til at institutionsbygninger, da der kan skabes fleksible løsninger - alt fra en ekstra stue til en hel institution. Derudover skabes der et godt indeklima via moderne ventilationssystemer og materialer. Finansieringen løser vi - du kan både købe eller leje lokalerne.
Reference
Flexicubes i mustensskaller
Til Svendborg Kommune har vi leveret flere institutioner. I foråret 2023 fik de leveret en vuggestue med plads til 20 børn. Bygningen er bygget i vores Flexicubes® system med en facade dækket af murstensskaller.
Ligeledes er der leveret en institution med plads til 28 børn i alderen 0-6 år på Wandallsvej. Bygningen er også her bygget i vores Flexicubes® med en facade i murstensskaller.
Entreprise: Hovedentreprise
Bygherre: Svendborg Kommune
Bruttoareal: 245 m² + 352 m²
År: 2023
LCA Wandallsvej: 9,2 kg CO2-ækv pr. m² pr. år
Reference
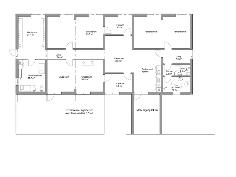
Daginstitutionen Bifrost
Skanderborg Kommune har fået en dagsinstitution på 267 m² bygget i Flexicubes® på 44 m². I forlængelse af bygningen er der en overdækket terrasse, der bidrager til at gøre institutionen større. Institutionen indeholder garderobe, et stort toilet- og puslerum, to store grupperum, 2 flexrum, et fællesrum med køkken, et personalerum og en toiletafdeling.
Entreprise: Udlejning i Hovedentreprise
Bygherre: Skanderborg Kommune
Bruttoareal: 267 m²
År: 2021
Reference
Børnely Aarhus
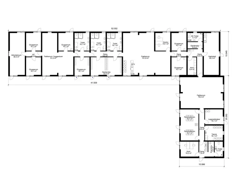
Aarhus Kommune skulle bruge en midlertidig bygning til Den Integrerede Børneinstitution Børnely. Børneinstitutionen blev bygget i Flexicubes® og indeholder garderobe, fællesrum, grupperum, værksted, toiletter, kontorer, personalerum og stort fællesrum med køkken.
Entreprise: Udlejning i Hovedentreprise
Bygherre: Aarhus Kommune
Bruttoareal: 794 m²
År: 2018
Reference
Børnehaven BUM
Holstebro Kommune manglede en midlertidig børnehavebygning til Børnehaven BUM. Børnehaven blev bygget i vores Flexicubes® på 44 m², og indeholder alle de faciliteter børnehaven havde behov for. Det gælder blandt andet grupperum, spiserum og toiletter.
Entreprise: Udlejning i Hovedentreprise
Bygherre: Holstebro Kommune
Bruttoareal: 416 m²
År: 2021
Reference
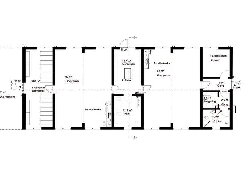
Børnebyøster Poppellunden
Børnebyøster Poppellunden ønskede en vuggestuebygning, som blev finansieret af Svendborg Kommune. Vuggestuen indeholder to grupperum, et krybberum, garderobe, samt toilet- og puslefaciliteter.
Entreprise: Hovedentreprise
Bygherre: Svendborg Kommune
Bruttoareal: 218 m²
År: 2018
Forskellige grundplansløsninger
Flexicubes®-konceptet kan sammensættes præcist efter dine behov, hvilket gør det til et fleksibelt system. Du kan altså udbygge eller indskrænke dit byggeri efter behov, samtidig med at det kan flyttes i takt med institutionens behov.
Herunder finder du inspiration til forskellige grundplansløsninger, man kan lave med vores Flexicubes®.
KONTAKT OS
Mangler I ekstra plads?
Vil I høre om mulighederne i vores Flexicubes® eller have et tilbud på leje eller køb, så kontakt os gerne her eller
ring 9744 2333