Flexicubes®
Undervisning
Mangler du et eller flere undervisningslokaler? Med Flexicubes® kan du få en fleksible løsning, der passer til dit behov - du kan få alt mellem ét undervisningslokale til en hel skole. Finansieringen er lige så fleksibel som løsningen - du kan både købe og leje undervisningslokaler fra Flex Modul.
Reference
Columbus Skolen
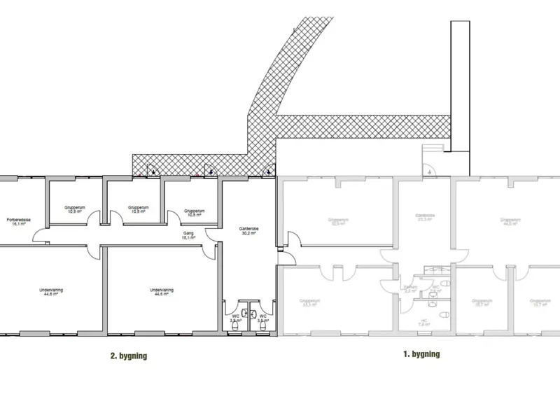
Columbus Skolen bestilte 357 m² i 2 enkeltstående bygninger, de kunne bruge til undervisning. Den første bygning er opført i vores mindste Flexicubes® på 35 m². Samlet set er bygningen 249 m² og indeholder flere klasselokaler og grupperum, samt fælles toiletter. Den anden bygning er 136 m² og indeholder et personalekøkken, flere fælles toiletter og fællesrum.
Entreprise: Udlejning i Hovedentreprise
Bygherre: Skanderborg Kommune
Bruttoareal: 357 m²
År: 2019
Reference
Viborg Kommune
Viborg Kommune havde brug for en undervisningsbygning til en specialskole for autistbørn. Vi har opført en bygning efter vores Flexicubes®-koncept på 220 m². Bygningen er indrettet med små og store grupperum, der giver personalet mulighed for at undervise i større og mindre grupper. Derudover indeholder bygningen garderobe og toiletter.
I 2019 leverede vi en udvidelse på 220 m² mere, da der var behov for mere plads på institutionen.
Entreprise: Udlejning i Hovedentreprise
Bygherre: Viborg Kommune
Bruttoareal: 220 m² + 220 m²
År: 2017 + 2019
Reference
Efterskolen for Scenekunst
Da Efterskolen for Scenekunst startede d. 12 august 2012 manglede de en musikbygning. Med vores Flexicubes® leverede vi en musikbygning, som indeholdt to musiklokaler, et lydstudie og et toilet.
Da Efterskolen for Scenekunst ikke længere havde brug for den ekstra musikbygning blev den flyttet til Ryslinge Friskole i 2017.
Entreprise: Udlejning i Hovedentreprise
Bygherre: Efterskolen for Scenekunst
Bruttoareal: 176 m²
År: 2012
Reference
Paderup Gymnasium
Paderup Gymnaisum manglede en ekstra undervisningsbygning som skulle være klar til skolestart, hvilket gav os en byggetid på 2 måneder fra ordren blev lavet til bygningen skulle stå færdig. Den ekstra undervisningsbygning indeholdt tre klasselokaler på 77,5 m², en aula på 61,4 m² og flere toiletter.
Entreprise: Hovedentreprise
Bygherre: Paderup Gymnasium
Bruttoareal: 352 m²
År: 2013
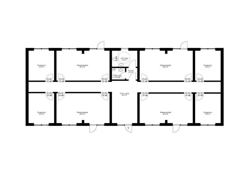
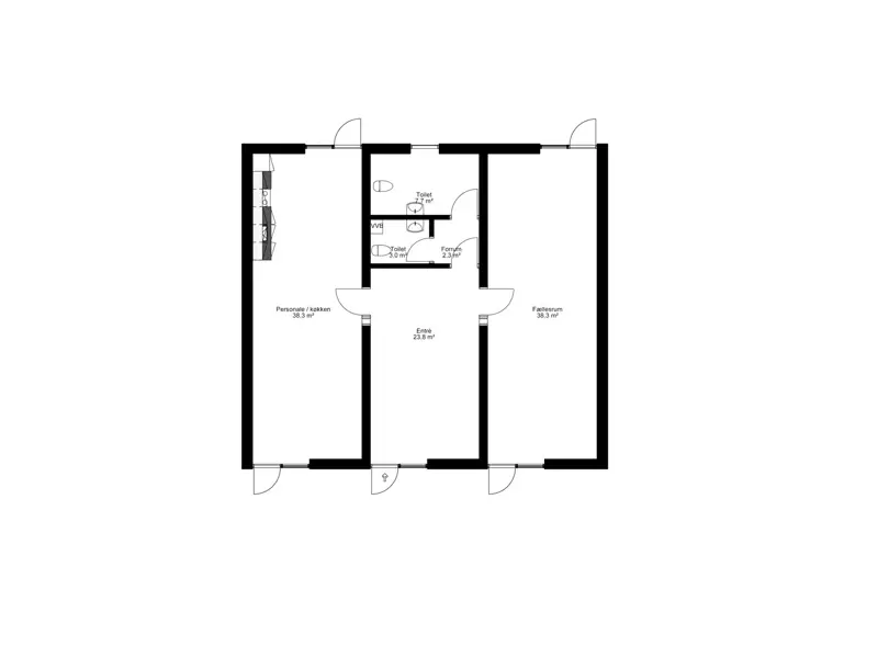
Forskellige grundplansløsninger
Flexicubes®-konceptet kan sammensættes præcist efter dine behov, hvilket gør det til et fleksibelt system. Du kan altså udbygge eller indskrænke dit byggeri efter behov, samtidig med at det kan flyttes i takt med skolens behov.
Herunder finder du inspiration til forskellige grundplansløsninger, man kan lave med vores Flexicubes®.
KONTAKT OS
Mangler I ekstra plads?
Vil I høre om mulighederne i vores Flexicubes® eller have et tilbud på leje eller køb, så kontakt os gerne her eller
ring 9744 2333